24 Rosebough Street
Dundas
The Property
Building Lot in a mature family friendly neighbourhood.
Just shy of 1/2 an acre this flat, wooded lot is perfect for your new built home. Located just minutes from Dundas, this property offers the perfect blend of convenience and charm. Enjoy easy access to fantastic restaurants, one-of-a-kind shops, grocery stores, parks, and a local recreation centre — all within a vibrant community that maintains its welcoming small-town atmosphere.
Nature lovers will appreciate being so close to Spencer Gorge and Webster’s Falls, where some of the region’s most stunning hiking trails and panoramic views await. Opportunities like this are rare — don’t miss your chance to build something exceptional in this sought-after location!
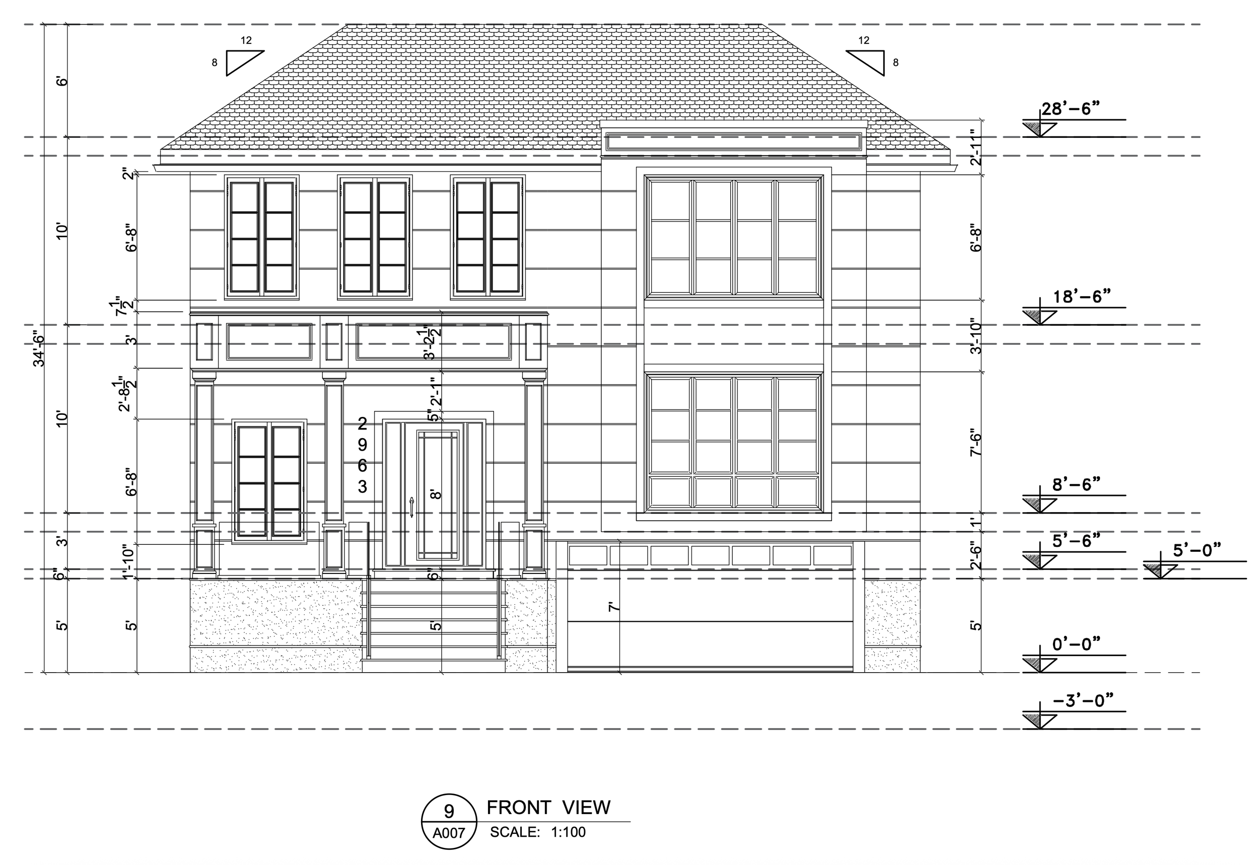
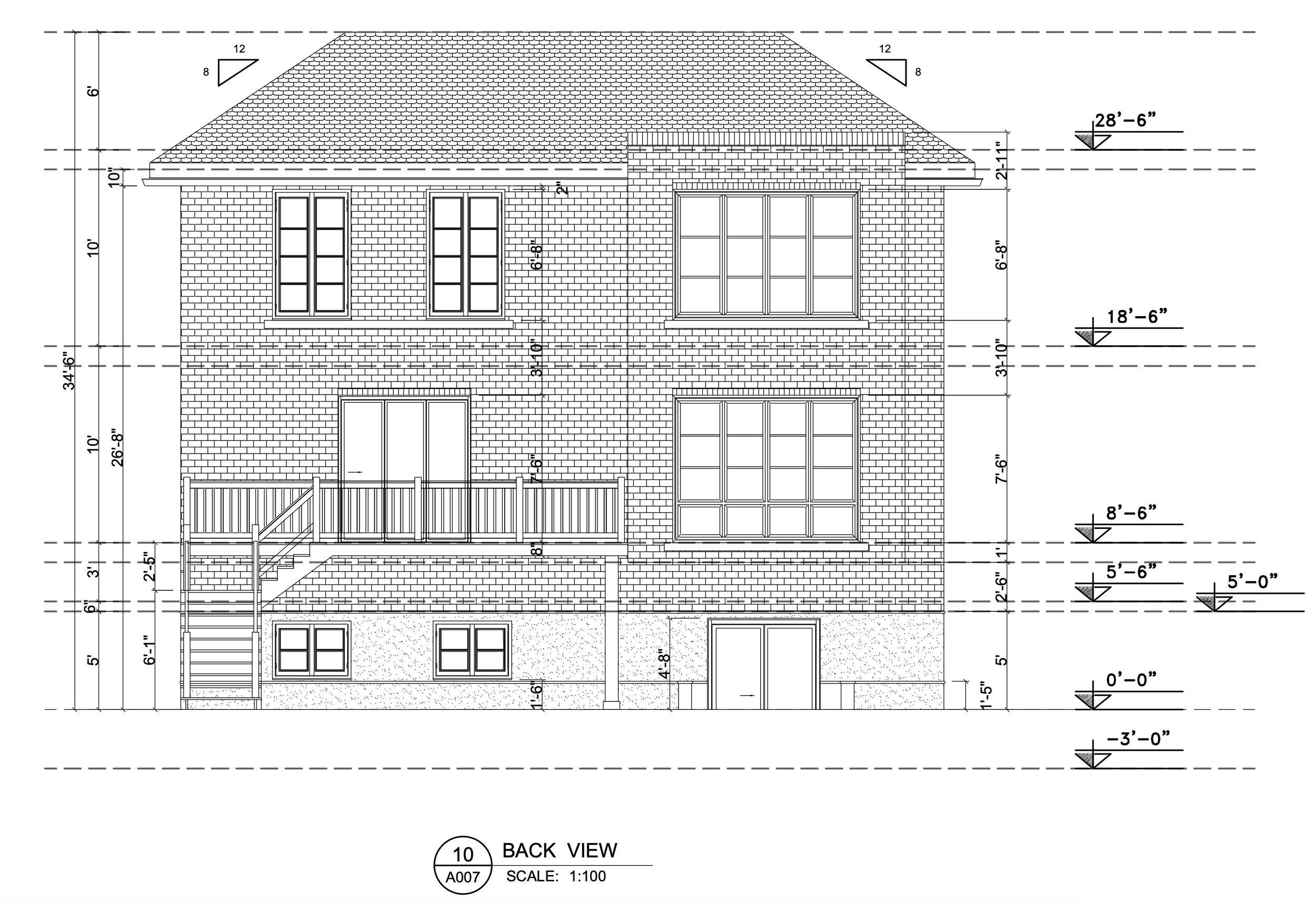
The House
This proposed residence represents an exciting opportunity for a future homeowner to create a fully customized living space in partnership with PNK Custom Homes and our design collaborators at Q-Engineering. While the current plans showcase a thoughtfully designed spec home, these serve only as inspiration. Once the property is purchased, we will work directly with the client to design and build a one-of-a-kind custom home tailored to their vision, lifestyle, and needs.
If you can dream it, we can build it.
The sample design illustrates a modern two-storey home with a finished basement, striking curb appeal, and spacious interiors. Generous living areas, a blend of open-concept and private rooms, and seamless connections between indoor and outdoor spaces set the stage for a home that is both functional and inspiring.
Designed by
FLOOR PLANS
Main Floor
The main level is designed for modern family living, with a focus on flow, functionality, and comfort. The foyer opens into expansive spaces that include an open kitchen with an adjacent servery and storage, a formal dining room, and a welcoming living room anchored by a fireplace. A bright TV room provides casual gathering space, while a private office offers the perfect work-from-home environment. The plan also includes a powder room and direct access to the garage. Large windows and thoughtful room placement maximize natural light and create a warm, inviting atmosphere.
Second Floor
The second storey emphasizes comfort and privacy with its well-appointed bedroom layout. The spacious master suite features a walk-in closet and an ensuite bath, providing a luxurious retreat for homeowners. Three additional bedrooms offer ample space for family or guests, complemented by a shared bath and a conveniently located laundry room. With a focus on comfort and efficiency, this floor balances private retreats with practical amenities.
Basement
The finished basement has been designed as a versatile retreat for relaxation and entertainment. The plan includes a bar and gym area, making it perfect for fitness and hosting alike. A dedicated cold room provides additional storage, while the open layout allows flexibility for a future theatre, recreation space, or home office. This level enhances the home with practical and lifestyle-focused features.
Designed by
Estimated Timeline: 9 - 15 Months
Estimated Budget
$850,000 - $1,200,000
This proposal represents a preliminary budget and estimated schedule based on available information and industry benchmarks. Actual costs and timelines may vary based on site conditions, weather, material availability, and customer selections. A finalized scope of work and fixed pricing will be developed upon completion of design, permit drawings, and contractor bidding.
Contact Us
Interested in building a house on this or another site?
Just fill out this form and either Matt or Ken will get back to you.
Or drop us a line the old fashioned way:
info@pnkcustom.homes
(905) 638-7934